Residential

Howard

A contemporary Fremantle home designed for everyday family living: simple, expressive and built to gather stories across decades.

 
 
 
 
 
 
 
 
 
 
 
 
 
 
 
 
 
 
 
 
 
 

Project Details

Photography — Rob Frith

Media Styling — Still Interior Styling

Builder — Capozzi

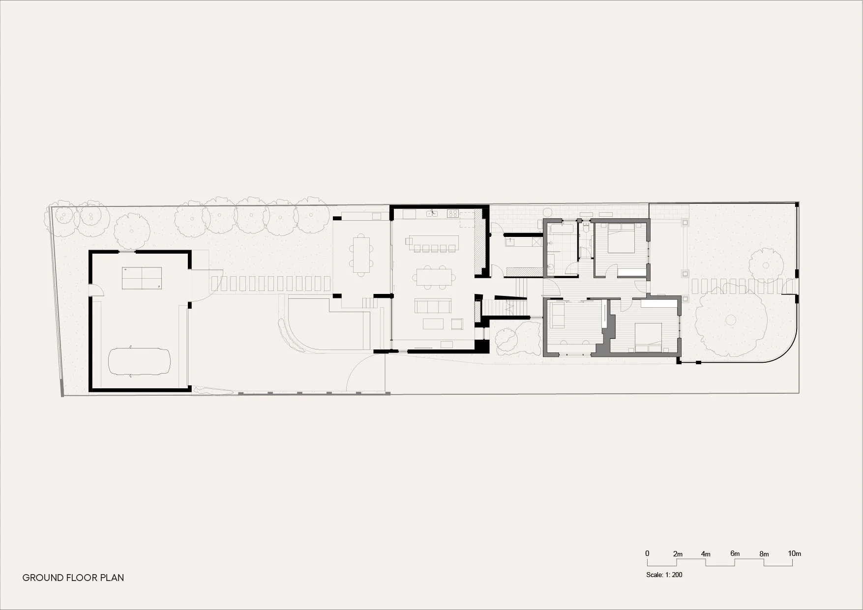
Located on a quiet Fremantle side street, on a deep cottage lot, this extension continues the practice’s interest in contextual brick-based architecture. A little sister project to the practice’s Marine House (2020), the extension uses a similar palette of bagged brick, concrete and bleached timber cladding, but employs a more expressive, playful form that builds on the language and material palette of the existing house.

Juxtaposing economical materials and finishes with moments of luxury, the construction is cost effective - Bagged brick walls, a burnished concrete slab and plywood kitchen cabinetry all celebrate affordable material honesty with a ‘Freo-vibe’.

While the design is considered, the architecture isn’t fussy, with the spaces very much for living in. The house is an economical expression of contemporary, quirky Fremantle architecture, designed for living in well through decades, with surfaces that age gracefully and weather, overlaid with a family’s stories and memories.

Testimonial

The Cast Studio team created a beautiful home for us. The design process felt collaborative and we trusted them at every stage.

The design honours the heritage of the front house and connects the new in a way that allows both seamless connection and gentle separation depending on our needs.

The use of rendered brick, limewash paint, water, concrete and timber responded perfectly to our brief for a coastal, industrial and feminine design.

The design feels authentic in its environment of Fremantle, fresh but grounded, like it truly belongs here. The design draws in light and nature, creating a sense of calm even on the busiest of days.

It feels like a sanctuary in the city, in many ways more like a coastal holiday house.

The design incorporates a large shed at the end of the yard, this was an innovative inclusion that was achieved very cost effectively as Cast explored companies that would allow for customization. This shed echoes the Fremantle Port in its roof pitch and provides a flexible space for creative and active pursuits. 

We often share our home with friends and family, we have considered spaces that can expand and contract depending on how many people are here. Multiple groups can enjoy separate activities simultaneously, allowing freedom of play and creativity. All spaces in the house feel functional and purposeful. The design feels cozy and homely whilst also elegant due to its apparent simplicity (created through very deliberate and accurate design). It has a sense of belonging in its environment that belies its newness.

The design has surpassed our hopes and expectations in its ability to nurture us as our home.